Augusta County, VA
Home MenuMaster Plan for Augusta County Administration & Services
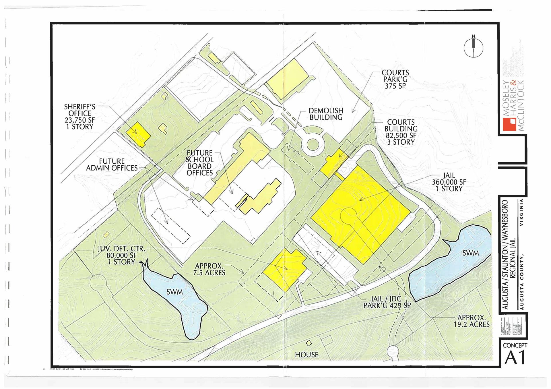
Augusta County's master plan was developed in 1988 to plan for the projected growth and space needs for core government services and administrative departments.
Before 1990, Augusta County government offices, departments, Sheriff's office and jail, and the three courts and court services were spread throughout downtown Staunton – in the historic 1901 courthouse, the current district courts building (which was then called the County Office Building), and other storefront buildings throughout downtown Staunton.
Since that time, the master plan has provided guidance for the planned relocation of agencies and departments from downtown Staunton to Verona:
- government administration moved to Verona in 1990,
- social services (1992),
- the Sheriff’s office (2004),
- juvenile detention center (2005) and regional jail (2006),
- and the Augusta County school board and administrative offices (2013).
This article from the News Leader (Feb 2015) describes "How Verona became home to county government."
The final phase of the master plan prescribes the relocation of the courts to a courts facility built on county-owned property near to the Government Center, the placement of which would be less than half of a mile from the sheriff's office, correctional facilities, social services, and core government offices.
